219-785-2576
1 New Durham Mall Ave, Westville, IN 46391
office@newdurhamest.com

752 Cypress Way

$150.000
  • Property type: New Homes
  • Offer type: For Sale
  • Bedrooms: 2
  • Bathrooms: 2
  • Property size: 900 ft²
  • Year: 2025

Features

  • Air Conditioning
  • Ceiling Fan
  • Central heating
  • Dishwasher
  • Porch
  • Refrigerator

Details

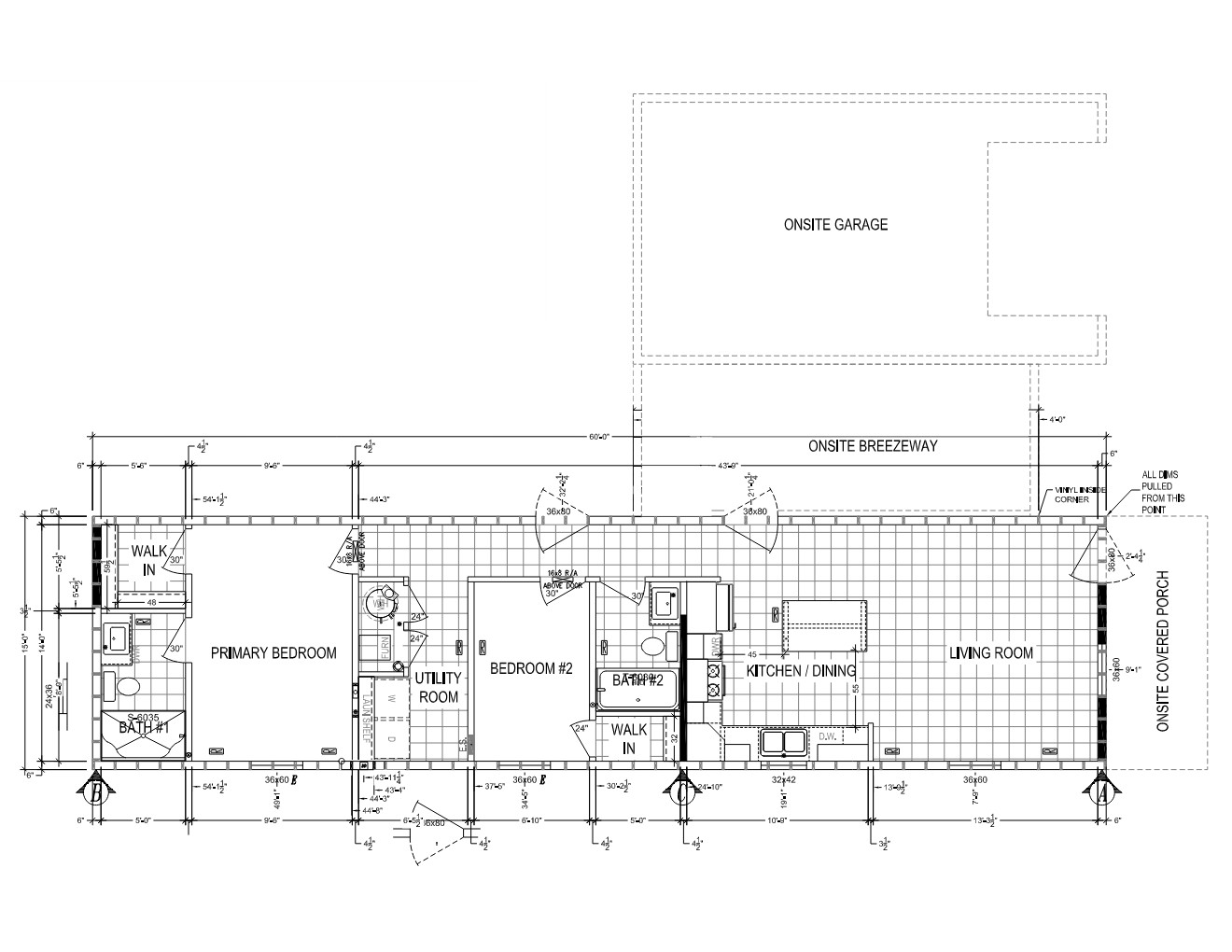
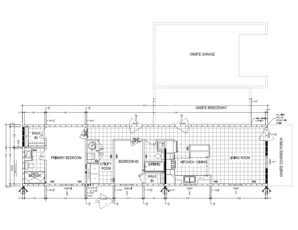
2025 Clayton Middlebury Manufactured Home | 2BR/2BA | 900 SF | Garage + Breezeway | ZERH

Brand new 2025 Clayton Middlebury single-section manufactured home located in New Durham Estates. This 900 sq ft home features 2 bedrooms and 2 full bathrooms, drywall throughout, and LVP flooring throughout.

Exterior upgrades include a 6×15 covered front porch, 10×10 rear deck, and a 9×24 breezeway leading to a 16×28 finished garage. Home is set on a 4′ crawl space and is a ZERH (Zero Energy Ready Home) energy rated home.

Key Features

  • 2025 Clayton Middlebury single-section

  • 900 sq ft

  • 2 bedrooms / 2 bathrooms

  • Drywall home

  • LVP flooring throughout

  • 6×15 covered front porch

  • 10×10 rear deck

  • 9×24 breezeway

  • 16×28 finished garage

  • 4′ crawl space

  • ZERH energy rated

Plans

Floor Plan